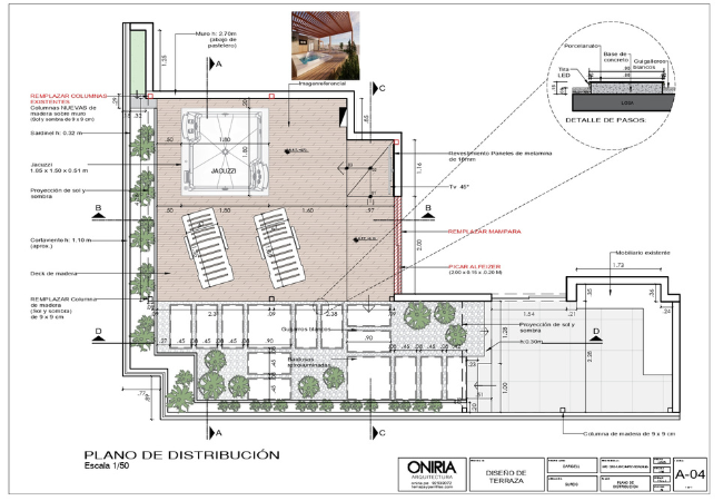
Proyecto de terraza con Jacuzzi
Las terrazas han dejado de ser un espacio secundario para convertirse en verdaderas extensiones del hogar. En este proyecto en un departamento duplex ubicado en el ultimo piso del un edificio en Santiago de Surco colocamos un Jacuzzi para terraza empotrado sobre un deck de madera, acompañado de un diseño que equilibra confort, estética y funcionalidad.

Un espacio existente con potencial
El cliente ya contaba con un techo sol y sombra de madera, un elemento clave que no solo se mantuvo, sino que se integró estratégicamente al nuevo diseño. Este tipo de estructura permite controlar la incidencia solar durante el día y aporta una atmósfera cálida que define el carácter del espacio.
En lugar de reemplazarlo —porque demoler también cuesta (y duele)—, decidimos potenciarlo.


Jacuzzi para terraza empotrado: el nuevo punto focal
El eje del proyecto es un jacuzzi empotrado, cuidadosamente ubicado para aprovechar tanto la privacidad como la orientación del espacio. La decisión de integrarlo dentro del deck permite:


- Un acceso más cómodo y seguro
- Una estética limpia y continua
- Mayor integración con el resto de la terraza
Además, el jacuzzi no se percibe como un elemento añadido, sino como parte del diseño desde el inicio.
Deck de madera: calidez y continuidad
El deck de madera cumple un rol fundamental en la propuesta. No solo unifica visualmente el área, sino que también eleva la experiencia del usuario:


- Genera una superficie cálida al tacto
- Mejora el drenaje en zonas húmedas
- Define claramente el área social
El diseño del deck se adapta a la geometría irregular de la terraza, resolviendo encuentros y transiciones de manera limpia.
Diseño de áreas: descanso y circulación
Se incorporaron reposeras orientadas hacia el jacuzzi, creando una zona de descanso tipo spa. La distribución permite una circulación fluida sin interferir con las áreas principales.
Además, se trabajó una franja verde perimetral que aporta:
- Mayor privacidad
- Sensación de frescura
- Un contraste natural con los materiales
Detalles que elevan el proyecto
En este tipo de intervenciones, los detalles marcan la diferencia. Algunos puntos clave del diseño:
- Iluminación integrada para uso nocturno
- Tratamiento de desniveles con pasos bien definidos
- Combinación de materiales como madera, piedra y vegetación
- Integración visual con el interior de la vivienda


Remodelar bien es diseñar mejor
Este proyecto demuestra que una buena remodelación no siempre implica empezar desde cero. Con una estrategia clara, es posible aprovechar lo existente y transformarlo en un espacio completamente renovado.
El resultado es una terraza funcional, estética y lista para usarse todo el año.
Tips de diseño para colocar un jacuzzi en tu terraza
Incorporar un jacuzzi en una terraza suena espectacular… hasta que te das cuenta que no todo es “lo pongo y ya”. Aquí van algunos criterios clave que aplicamos en este proyecto y que pueden ahorrarte dolores de cabeza (y presupuesto).
1. Evalúa la estructura antes de emocionarte
Un jacuzzi lleno de agua + personas puede superar fácilmente los 800 kg o más. No es un mueble, es casi un pequeño “elefante acuático”.
Antes de diseñar:
- Verifica la capacidad de carga de la losa
- Consulta con un ingeniero estructural si es necesario
- Considera refuerzos si el proyecto lo requiere
En este caso, el jacuzzi fue empotrado dentro del deck, lo que ayuda a distribuir mejor las cargas.
2. Ubicación estratégica: privacidad vs vista
No todo es ponerlo donde “entra”. Hay que pensar cómo se usa:
- ¿Quieres vista abierta o más privacidad?
- ¿Hay viento fuerte en esa zona?
- ¿Qué tan expuesto está al sol?
Aquí se ubicó en una zona protegida por el techo sol y sombra, logrando equilibrio entre luz natural y confort.
3. Integrarlo al diseño (no que parezca comprado ayer)
Un error común: el jacuzzi parece “caído del cielo”.
La clave:
- Empotrarlo o integrarlo al deck
- Usar materiales que dialoguen con el entorno
- Diseñar niveles y bordes que lo enmarquen
En este proyecto, el deck de madera hace que el jacuzzi se sienta parte del espacio, no un accesorio.
4. Accesos cómodos y seguros
Nada peor que entrar al jacuzzi como si estuvieras escalando.
Considera:
- Altura adecuada del borde
- Escalones o plataformas integradas
- Superficies antideslizantes
El diseño debe ser intuitivo: entras sin pensar.
5. Instalaciones: agua, desagüe y electricidad
Este punto suele ignorarse… hasta que toca romper todo.


Asegúrate de prever:
- Punto de agua cercano
- Sistema de drenaje eficiente
- Instalación eléctrica segura y protegida
Mientras más lo planifiques desde el inicio, menos improvisación (y menos gastos sorpresa).
6. Protección solar: clave para el confort
El sol directo puede arruinar la experiencia.
Opciones:
- Techo sol y sombra (como en este proyecto)
- Pérgolas
- Sombrillas o velas tensadas
La idea es poder usar el jacuzzi a cualquier hora sin sentir que estás en una sartén.
7. Iluminación para uso nocturno
Un jacuzzi sin iluminación es un desperdicio.
Incorpora:
- Luces cálidas indirectas
- Iluminación en el deck
- Opcional: iluminación dentro del jacuzzi
Resultado: ambiente tipo spa, pero en tu casa.
8. Vegetación: el toque que cambia todo
Las plantas no son decoración… son atmósfera.
- Generan privacidad
- Suavizan materiales duros
- Mejoran la sensación de relajación
En este diseño, la franja verde perimetral ayuda a “encapsular” el espacio y hacerlo más íntimo.
Equipo de diseño del proyecto de terraza con Jacuzzi
El equipo de diseño de Oniria Arquitectura para este proyecto esta formado por:
Jefe de diseño: Cristian Campos (972532969, cristian@oniria.pe)
Diseño interior: Arquitectas Yadyra Cruz Limas Jaurigue y Melanie Cuello.
Presupuestos de obra: Diseñadora de interiores Valeria Claros Mendieta.






