Diseño de Centro de lavado de vehículos en Surco
Hace poco, en Oniria Arquitectura recibimos un encargo particular y estimulante: diseñar un centro de lavado y detailing de vehículos en una de las avenidas del distrito de Santiago de Surco, en Lima. El proyecto debía optimizar el espacio disponible para tener una construcción rápida y económica, sin perder eficiencia operativa ni calidad en la experiencia del usuario.

El reto era claro: cuatro espacios operativos para autos y camionetas, distribuidos entre dos zonas de lavado y dos de pulido y detailing, con circulaciones fluidas y tiempos de atención optimizados. Pero no solo se trataba de lavar autos: también debía incluir una zona de espera cómoda y moderna para los clientes, con vistas a las áreas de trabajo, además de una recepción con caja, oficina administrativa y un almacén para insumos.
Este tipo de proyectos nos entusiasma porque combina funcionalidad, estética y eficiencia operativa en un solo espacio.
La distribución del proyecto del centro de lavados de vehículos en Surco
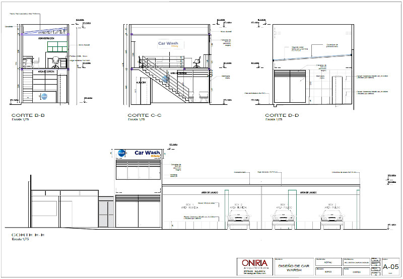
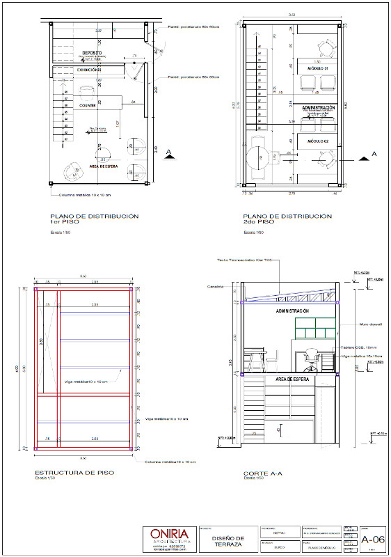
El proyecto del centro de lavado de vehículos consistió en diseñar en el primer nivel del terreno las áreas de lavado, limpieza en seco con cuatro espacios para autos y camionetas, zona de caja, espera y un pequeño almacén. En el segundo nivel diseñamos el area administrativa, con dos oficinas y una pequeña mesa de reuniones. El área intervenida es de 116 m2 como el total de terreno (6 x 19 m. aproximadamente) y 20 m2 en las oficinas del segundo nivel.



Los acabados y la imagen del centro de lavado de carros
Luego del diseño de la distribución y los detalles técnicos es muy importante en un diseño comercial tener definidos la imagen, valores y colores corporativos de la marca para poder reflejarlos de la menor forma posible en la arquitectura. En este caso se opto por utilizar colores neutros para que puedan combinar con el logo enviado por el cliente.

Para este proyecto, propusimos un enfoque de acabados que combina resistencia, facilidad de mantenimiento y una experiencia visual cuidada tanto para el cliente como para el personal.
El módulo de oficinas y recepción se diseñó con una estructura metálica ligera, recubierta con paneles de drywall, una solución eficiente y versátil que permite rapidez en la construcción sin sacrificar calidad. La sala de espera, clave en la experiencia del usuario, cuenta con amplios ventanales de vidrio templado, que permiten a los clientes observar cómodamente todo el proceso de lavado y detailing de sus vehículos. Esta conexión visual no solo genera confianza, sino que convierte la espera en parte del espectáculo. Para dividir esta zona del área operativa, se incorporó una mampara de policarbonato, que permite el paso de luz natural sin sacrificar seguridad ni aislamiento.
En la zona de trabajo, el techo se resolvió con policarbonato transparente, lo que asegura una excelente iluminación durante el día, reduce el consumo energético y genera un ambiente de trabajo más agradable. El piso de concreto pulido fue diseñado con una ligera pendiente y rejillas de desagüe estratégicamente ubicadas, garantizando un drenaje eficiente y limpieza constante. Además, se colocó un manto de caucho de alta resistencia en la parte frontal del car wash, una solución sencilla pero efectiva para evitar que los vehículos se ensucien nuevamente al salir, especialmente en temporada de lluvias.
Cada elección de material y acabado responde no solo a criterios técnicos, sino también a una visión integral de la experiencia del usuario y eficiencia operativa.




El equipo de diseño comercial de Oniria Arquitectura
El equipo de diseño de Oniria Arquitectura para este proyecto esta formado por:
Jefe de diseño: Cristian Campos (972532969, cristian@oniria.pe)
Supervisión de diseño: Arq. Gabriela Sanez.
Propuesta en 3d: Arq. Yadyra Cruz Limas.
Desarrollo cad: Arq. Yadyra Cruz Limas.





