Diseño Arquitectónico de Car Wash: Claves para un Lavadero de Autos Moderno y Rentable
El diseño de un car wash ya no es solo una cuestión operativa. Hoy, un lavadero de autos bien diseñado es una infraestructura comercial, una experiencia para el usuario y una máquina de rentabilidad… o todo lo contrario si se improvisa.
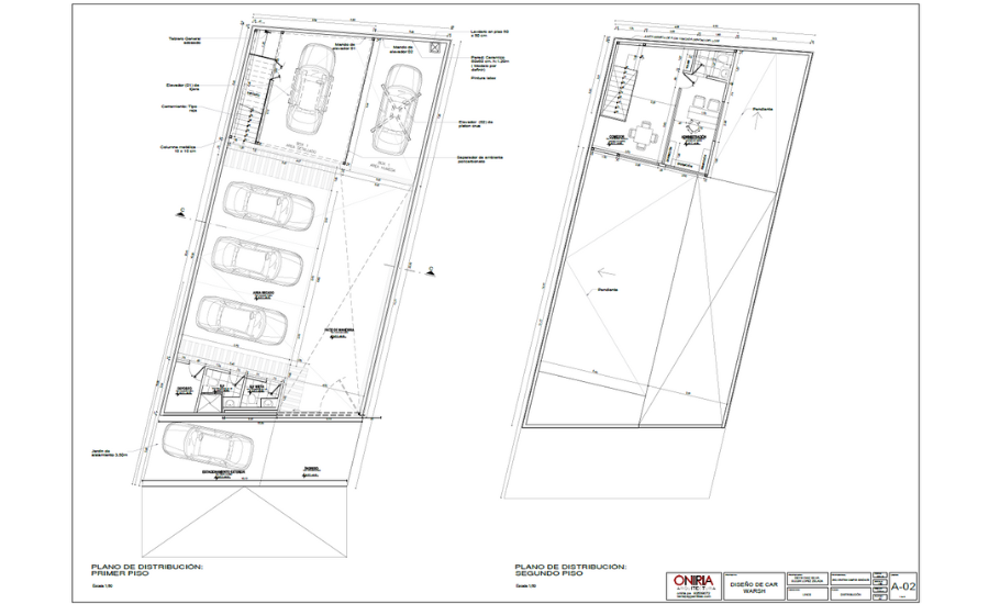
En Oniria Arquitectura abordamos el diseño de car wash desde la arquitectura vehicular, entendiendo flujos, tiempos, normativa y experiencia. Porque aquí los errores no se ven: se congestionan.

¿Qué es el diseño arquitectónico de un car wash?
Es la planificación integral de un espacio pensado para:
- Movimiento constante de vehículos
- Operaciones húmedas y secas
- Personal en acción continua
- Clientes que esperan (y juzgan)
Un buen diseño no solo ordena, optimiza cada minuto del recorrido del auto, desde el ingreso hasta la salida.
Claves para un diseño arquitectónico de car wash eficiente
1. Flujo vehicular inteligente
La arquitectura vehicular es la columna vertebral del proyecto.
Un car wash mal diseñado genera:
- Colas innecesarias
- Maniobras forzadas
- Riesgo de accidentes
- Clientes que no regresan
El objetivo es claro: ingresar, lavar, secar y salir sin cruces ni retrocesos. El auto manda, no el plano.
2. Zonas bien definidas (y que no se peleen entre sí)
Un lavadero de autos moderno debe separar claramente:
- Accesos y salidas
- Zona de espera
- Área de lavado
- Área de secado y detailing
- Espacios técnicos y de máquinas
Cuando estas zonas se mezclan, el negocio pierde ritmo. Y en este rubro, el tiempo es dinero literal.


3. Materiales pensados para el castigo diario
Aquí no hay lugar para materiales “bonitos pero frágiles”.
En el diseño de car wash se priorizan:
- Pisos antideslizantes y de alto tránsito
- Revestimientos resistentes a humedad y químicos
- Estructuras metálicas protegidas contra corrosión
- Drenajes bien calculados (el héroe invisible del proyecto)
Si el material falla, la operación se detiene. Y eso duele más que un rayón profundo.
4. Imagen arquitectónica que venda confianza
Aunque no lo parezca, el cliente sí juzga el diseño:
- Un car wash ordenado transmite profesionalismo
- Un espacio limpio genera confianza
- Una arquitectura clara invita a volver
El diseño no solo debe funcionar: debe parecer que funciona bien.
5. Diseño pensado para crecer
Muchos car wash nacen pequeños… y crecen rápido.
Un buen proyecto arquitectónico considera:
- Ampliaciones futuras
- Nuevas líneas de lavado
- Áreas de detailing premium
- Integración de tiendas, cafeterías o salas de espera
Diseñar solo para hoy es pan para hoy y demolición para mañana.
Errores comunes en el diseño de lavaderos de autos
Algunos clásicos que vemos (y evitamos):
- Copiar modelos sin analizar el terreno
- Subestimar drenajes y pendientes
- No prever colas en horas punta
- Diseñar sin pensar en mantenimiento
- Olvidar que el cliente… espera
La arquitectura no perdona la improvisación. El agua, menos.
Diseño de car wash con enfoque rentable
Un car wash bien diseñado:
- Atiende más autos por hora
- Reduce tiempos muertos
- Disminuye desgaste operativo
- Mejora la experiencia del cliente
En otras palabras: el diseño también factura.





